
Bekanntmachung über die öffentliche Auslegung des vorhabenbezogenen
Bebauungsplanes „Sondergebiet Photovoltaikanlage Rieder 2“
Der Stadtrat der Stadt Ballenstedt hat in seiner Sitzung am 26.11.2024 beschlossen, den Entwurf des vorhabenbezogenen Bebauungsplanes „Sondergebiet Photovoltaikanlage Rieder 2“(Stand 10/2024) gemäß § 3 Abs. 2 BauGB erneut öffentlich auszulegen.
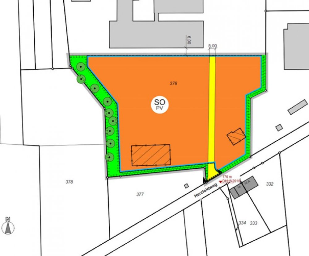
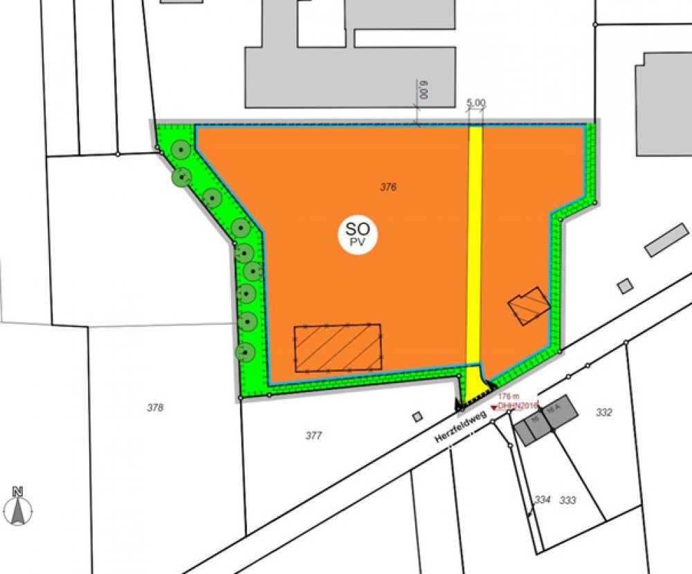
Der Geltungsbereich des vorhabenbezogenen Bebauungsplanes „Sondergebiet Photovoltaikanlage Rieder 2“ ist im beigefügtem Lageplan gekennzeichnet.
Auf Grundlage des Gesetzes zur Sicherstellung ordnungsgemäßer Planungs-und Genehmigungsverfahren (Planungssicherstellungsgesetz –PlanSiG) und entsprechend den Bestimmungen des Baugesetzbuches erfolgt die Auslegung des Entwurfes des Bebauungsplanes einschl. der Begründung und des Umweltberichts in der Zeit vom
24.03.2025 bis zum 25.04.2025
durch eine Veröffentlichung im Internet auf der Startseite der Stadt Ballenstedt „www.ballenstedt.de“ unter der Rubrik Bekanntmachungen.
Ergänzend können die genannten Unterlagen in der Zeit vom 24.03.2025 bis zum 25.04.2025 auch im Bauverwaltungsamt, Zimmer 17 der Stadt Ballenstedt, Rathausplatz 12, 06493 Ballenstedt, zu folgenden Zeiten:
Montag | 8.00 - 12.00 Uhr |
Dienstag | 8.00 - 12.00 Uhr und 14.00 - 18.00 Uhr |
Mittwoch | 8.00 - 12.00 Uhr |
Donnerstag | 8.00 - 12.00 Uhr und 14.00 - 16.00 Uhr |
Freitag | 8.00 - 12.00 Uhr |
eingesehen werden. Während dieser Zeit besteht für jedermann die Gelegenheit, sich zu der Planung zu äußern. Stellungnahmen können schriftlich oder zur Niederschrift oder jederzeit per E-Mail unter folgender Adresse rathaus@ballenstedt.de vorgebracht werden. Die Einsichtnahme ist nach vorheriger Terminvereinbarung telefonisch unter (039483 96734) oder per E-Mail (daniel.stadler@ballenstedt.de) auch zu anderen Zeiten möglich.
Folgende umweltbezogene Informationen und Stellungnahmen sind verfügbar und liegen ebenfalls öffentlich aus:
- Der Umweltbericht mit Aussagen zu den Schutzgütern Mensch, Boden, Wasser, Klima / Luft, Arten und Lebensgemeinschaften, Landschaftsbild, Kultur- und sonstigen Sachgütern
Hierzu kann von jedermann während der Auslegungsfrist schriftlich oder während der Öffnungszeiten bzw. nach gesonderter Terminabsprache mündlich oder zur Niederschrift vorgebracht werden. Fachliche und inhaltliche Erläuterungen und Auskünfte zur o.g. Planung sind innerhalb der Öffnungszeiten oder auch nach gesonderter Terminabsprache möglich. Nicht fristgerecht abgegebene Stellungnahmen können bei der Beschlussfassung über den Bebauungsplan „Sondergebiet Photovoltaikanlage Rieder 2“ unberücksichtigt bleiben.
Ballenstedt, den 22.03.2025 Bürgermeister Siegel

Übersichtsplan
Vorhabenbezogener Bebauungsplan „Sondergebiet Photovoltaikanlage Rieder 2“ der Stadt Ballenstedt

